Смотреть на картах
Дом под ключ «Домик под ключ двухкомнатный»
на Яндекс Картах Не является предложением услуг средства (объекта) размещения, но предлагает похожие условия. Является предложением краткосрочного найма (аренды) от частного лица (ч.2 ст.30 ЖК РФ, ст.209 ГК РФ), без предоставления гостиничных услуг.
Дом под ключ «Домик под ключ двухкомнатный», Лоо
0.0
Отзывы
Краснодарский край,
Сочи, Лоо, ул.Таллинская, д.41А
Описание
Дом под ключ «Домик под ключ двухкомнатный»,
Краснодарский край,
Сочи, Лоо,
ул.Таллинская, д.41А
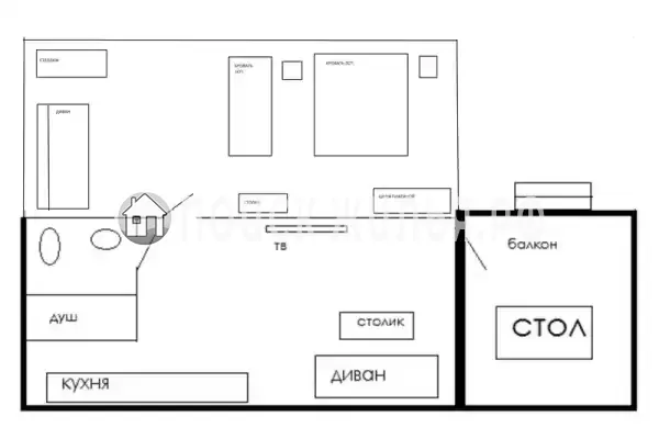
Сдаётся летний домик с кухней в Лоо. До моря 600 метров, можете добраться менее, чем за 10 минут. Две спальни на 2 и 3 места возможно в каждую поставить ещё по одной кровати за небольшую доплату. Каждая имеет отдельный вход и замыкается. В спальнях: сплит-система, шкаф двухдверный, двуспальная кровать (в одной плюс односпальная), тумбочки. Для холодного времени предусмотрен обогрев полов. Место тихое, воздух чистый, зелёная зона.
На кухне обеденный стол, телевизор, плита, холодильник, микроволновка, шкафы с посудой, стиральная машинка. Холодная вода - круглосуточно. Горячая - ЭВН на 80 литров. Во дворе основного домовладения можно припарковать автомобиль. Есть своя небольшая территория со столиком и мангалом. Парковка во дворе основного домовладения. Возможны скидки на горящие периоды либо за длительность. возможна доплата за дополнительные места. За неполные сутки (поздний отъезд, ранний заезд) - доплата по договорённости.
В 5-10 минутах ходьбы вся инфраструктура - продуктовые магазины, экскурсии.
До ж/д вокзала 10-15 минут. С вокзала Лоо встречаем бесплатно, с аэропорта - по договорённости. Бассейн 3,0 м только для домика.
Характеристики
Кафе рядом
Магазины рядом
Можно с животными
Wi-Fi на территории
Можно с грудничками
Безналичная оплата
Место для курения
Стиральная машина








Бронирование недоступно
Укажите даты заезда и выезда
Укажите даты заезда и выезда
Апартаменты двухкомнатные с балконом (32 кв.м)
Категория: Дом Гостей: 6 чел.
Кровати: 3 двуспал.
Wi-Fi Кондиционер Санузел Душевая комната Телевизор Холодильник Балкон Кухня
2500-3500 руб/сутки
Количество:
Забронировать
Цены








Бронирование недоступно
Укажите даты заезда и выезда
Укажите даты заезда и выезда
Одноместный (20 кв.м)
Категория: Дом Гостей: 4 чел.
Кровати: 2 двуспал.
Wi-Fi Кондиционер Санузел Душевая комната Телевизор Холодильник Балкон
1500-2000 руб/сутки
Количество:
Забронировать
Цены










Бронирование недоступно
Укажите даты заезда и выезда
Укажите даты заезда и выезда
Домик под ключ двухкомнатный (40 кв.м)
Категория: Дом Гостей: 7 чел.
Кровати: 1 односпал. + 3 двуспал.
Wi-Fi Кондиционер Санузел Душевая комната Телевизор Холодильник Балкон Кухня
4000-6500 руб/сутки
Количество:
Забронировать
Цены









Бронирование недоступно
Укажите даты заезда и выезда
Укажите даты заезда и выезда
Двухкомнатный четырёхместный с балконом (22 кв.м)
Категория: Дом Гостей: 6 чел.
Кровати: 3 двуспал.
Wi-Fi Кондиционер Санузел Душевая комната Телевизор Холодильник Балкон
2000-3000 руб/сутки
Количество:
Забронировать
Цены


























Бронирование недоступно
Укажите даты заезда и выезда
Укажите даты заезда и выезда
Домик под ключ двухкомнатный
Категория: Дом Гостей: 6 чел.
Кровати: 3 двуспал.
Стиральная машина Можно с грудничками Место для курения Можно с животными Wi-Fi Телевизор Кондиционер
3000-7000 руб/сутки
Количество:
Забронировать
Цены
Заявка на бронирование успешно отправлена! Ожидайте звонка от объекта размещения. Так как заявка отправлена на электронную почту объекта, ответ может занимать до нескольких часов. Вы можете сами позвонить в объект размещения и уточнить бронирование.
Показать контакты объекта
Как вас зовут?
Телефон
E-mail
*Отправляя заявку, вы даете согласие на обработку своих персональных данных и принимаете условия
Пользовательского соглашения
Подтвердить бронирование с по
Дом под ключ «Домик под ключ двухкомнатный»
производит бронирование по телефону.Пожалуйста, позвоните по номеру:
(написать на WhatsApp)
скажите, что вы пришли с сайта ПоискЖилья.РФ
и хотите забронировать этот номер.
*Цена может отличаться. Уточняйте при бронировании.
Оцените ваше проживание
Ваш отзыв
Не менее 100 символов
Мы стремимся сделать наш проект максимально удобным как для владельцев недвижимости, так и для гостей. Если у вас есть жалобы на этот объект размещения - пожалуйста, сообщите нам о этом. Мы обязательно примем меры!
Укажите ваш E-mailНе менее 50 символов
Отзывы гостей
Дом под ключ «Домик под ключ двухкомнатный»: часто задаваемые вопросы
Как забронировать проживание в доме под ключ «Домик под ключ двухкомнатный»?
Дом под ключ «Домик под ключ двухкомнатный» производит бронирование по телефону. При нажатии кнопки "Забронировать" вам предоставятся номера телефонов для самостоятельного звонка и бронирования.
Обратите внимание! Мы являемся информационным ресурсом (сайтом). Мы не участвуем в сделке
по бронированию и не берем комиссии за бронирование ни с гостей, ни с объекта размещения. Прежде чем вносить предоплату,
прочитайте отзывы не только на нашем сайте, но и в сети Интернет, воспользовавшись поиском. Все объекты проходят проверку, но
это не исключает получения недостоверной информации или обмана.
Сколько стоит проживание в доме под ключ «Домик под ключ двухкомнатный»?
Стоимость проживания
в доме под ключ «Домик под ключ двухкомнатный» начинается от 1500 руб. в сутки. Для того, чтобы увидеть цену, введите, пожалуйста, предполагаемые даты вашего приезда. Цена зависит от выбранных дат, сезона, типа номера, количества гостей и дополнительных услуг.
Возможно ли размещение с домашними питомцами?
Дом под ключ «Домик под ключ двухкомнатный» позволяет проживать вместе с домашними питомцами, но вам необходимо согласовать это при бронировании. За данную услугу может взыматься дополнительная плата.
Есть ли услуга встречи на жд/авиа вокзале и трансфера?
К сожалению, дом под ключ «Домик под ключ двухкомнатный» не предоставляет улугу трансфера. Вам необходимо самостоятельно позаботиться об этом.
Есть ли на территории детская площадка и бассейн?
К сожалению, в доме под ключ «Домик под ключ двухкомнатный» на территории нет детской площадки для маленьких гостей. Бассейн на территории отсутствует.
Есть ли кухня для самостоятельного приготовления пищи?
К сожалению, в доме под ключ «Домик под ключ двухкомнатный» нет кухни для самостоятельного приготовления пищи, но рядом находятся кафе и столовые, где вы можете заказать себе еду.
Есть ли парковка для автомобиля на территории?
К сожалению, в доме под ключ «Домик под ключ двухкомнатный» нет собственной парковки для гостей путешествующих на автомобиле. Вы можете припарковать свой автомобиль за территорией или воспользоваться платными парковками.
Похожие объекты рядом
«Селена»
Гостевой дом «Зеленая горка»
Гостевой дом «Жемчуг»
Частный сектор «Мельсида»
Гостевой дом «LooRoom»
«Афродита»
Города рядом
Снять жилье в Благовещенской
Гостиницы и отели
Гостевые дома
Квартиры и апартаменты
Базы отдыха
Частный сектор
Снять жилье в Кринице
Гостиницы и отели
Гостевые дома
Квартиры и апартаменты
Базы отдыха
Частный сектор
Снять жилье в Ольгинке
Гостиницы и отели
Гостевые дома
Квартиры и апартаменты
Базы отдыха
Частный сектор
Снять жилье в Вишневке
Гостиницы и отели
Гостевые дома
Квартиры и апартаменты
Базы отдыха
Частный сектор
Снять жилье в Дагомысе
Гостиницы и отели
Гостевые дома
Квартиры и апартаменты
Базы отдыха
Частный сектор
Снять жилье в Мысхако
Гостиницы и отели
Гостевые дома
Квартиры и апартаменты
Базы отдыха
Частный сектор







